RAI CLUB ATLÉTICO
_______ P L A N O _ G E N E R A L ______________

Este conjunto de planos corresponde a diversas representaciones del edificio. En primer lugar, se incluye el croquis del centro clandestino de detención presentado por Horacio Cid de la Paz y Oscar Alfredo González en su declaración frente a Amnistía Internacional.

En segundo lugar, el plano con el estado de avance de la excavación, con los hallazgos a la vista, sobre el croquis testimonial.

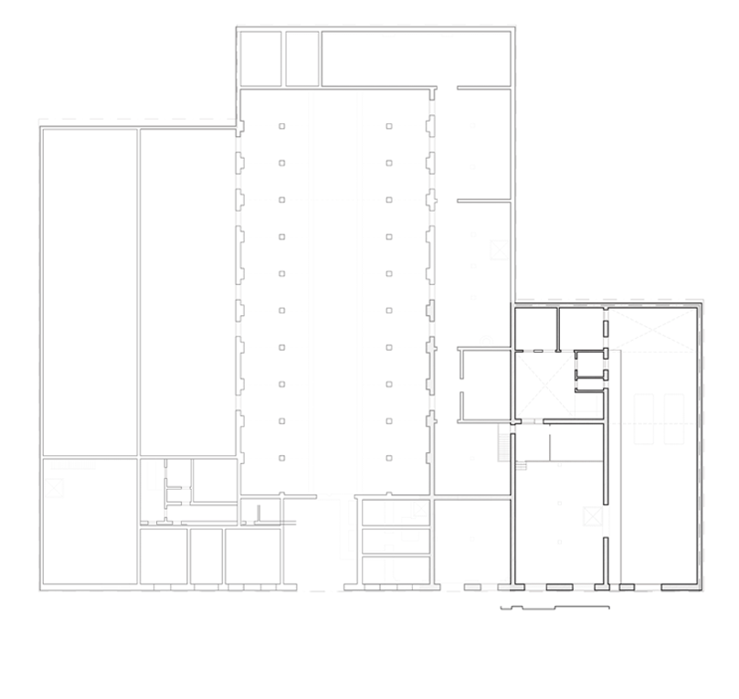
En tercer y cuarto lugar se encuentran los planos de la planta baja y del subsuelo del edificio, armados en base a los croquis testimoniales, con los planos históricos y contrastando con la materialidad del sitio.

La parcela del edificio en su nivel de PB ocupaba unos 2600m2, siendo considerablemente más grande que la superficie del subsuelo. Si bien el funcionamiento del CCD, se centró en el sótano, hubo sectores de la PB que estuvieron afectados a la dinámica concentracionaria.

1 - ENTRADA VEHICULAR
2 - RECINTOS DE ACCESO

El edificio contaba con dos sótanos, el mayor de ellos tenía una superficie aproximada de 600m2 y es el que albergó el funcionamiento del CCD. Construido originalmente como depósito, no contaba con subdivisiones, por lo que debió ser acondicionado especialmente para funcionar como lugar de cautiverio. La infraestructura represiva incluyó la construcción de tabiques divisorios internos para conformar espacios de usos específicos: celdas, salas de tortura, baños, enfermería, etc.

3 - ESCALERA DE ACCESO / SUM / SALA DE GUARDIAS
4 - SALA DE CONSEJO / CELDAS DE AISLAMIENTO A y B/ ASCENSOR / CISTERNA
5 - ENFERMERÍA
6 - BAÑOS
7 - LEONERA
8 - CELDAS: SECTOR 1
9 - SALAS DE TORTURA
10 - CELDAS: SECTOR 2